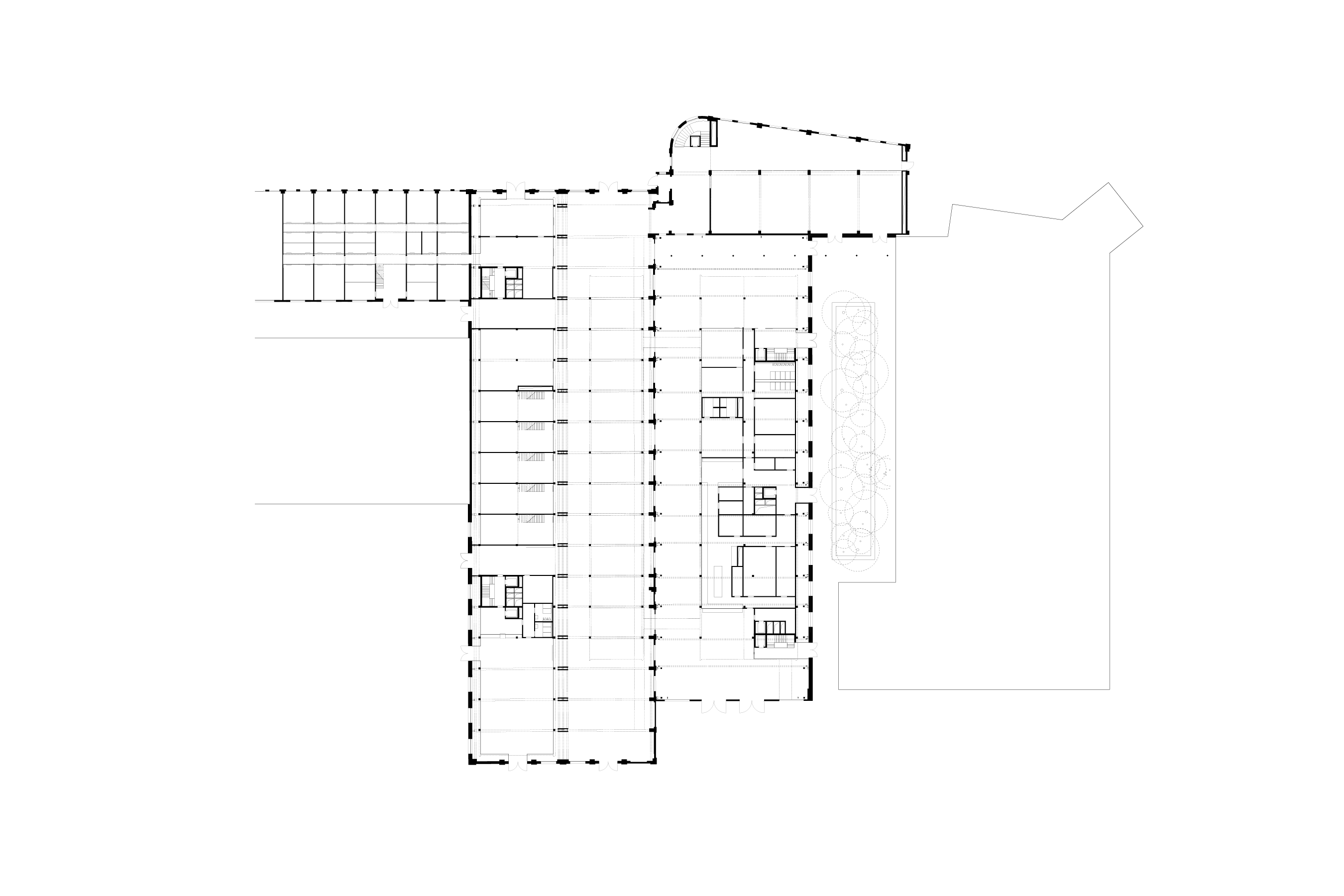
In Lokstadt, a former industrial hub of the Swiss Locomotive and Machine Factory (SLM), a new, versatile, and sustainable urban district is taking shape in the center of Winterthur. Within this urban context, a plethora of developments are being designed, ranging from diverse types of housing, offices, co-working spaces, hotels, gastronomy, and retail. Essential to preserving the essence of this historic and important site are its heritage-listed halls and generous open communal areas.
Spillmann Echsle's proposal for Lokstadt was conceived for an invited design competition. In their plan, the Habersack Hall and the market hall form the primary public and central axis, connected to a co-working reception, an event room, commercial spaces, and a restaurant.
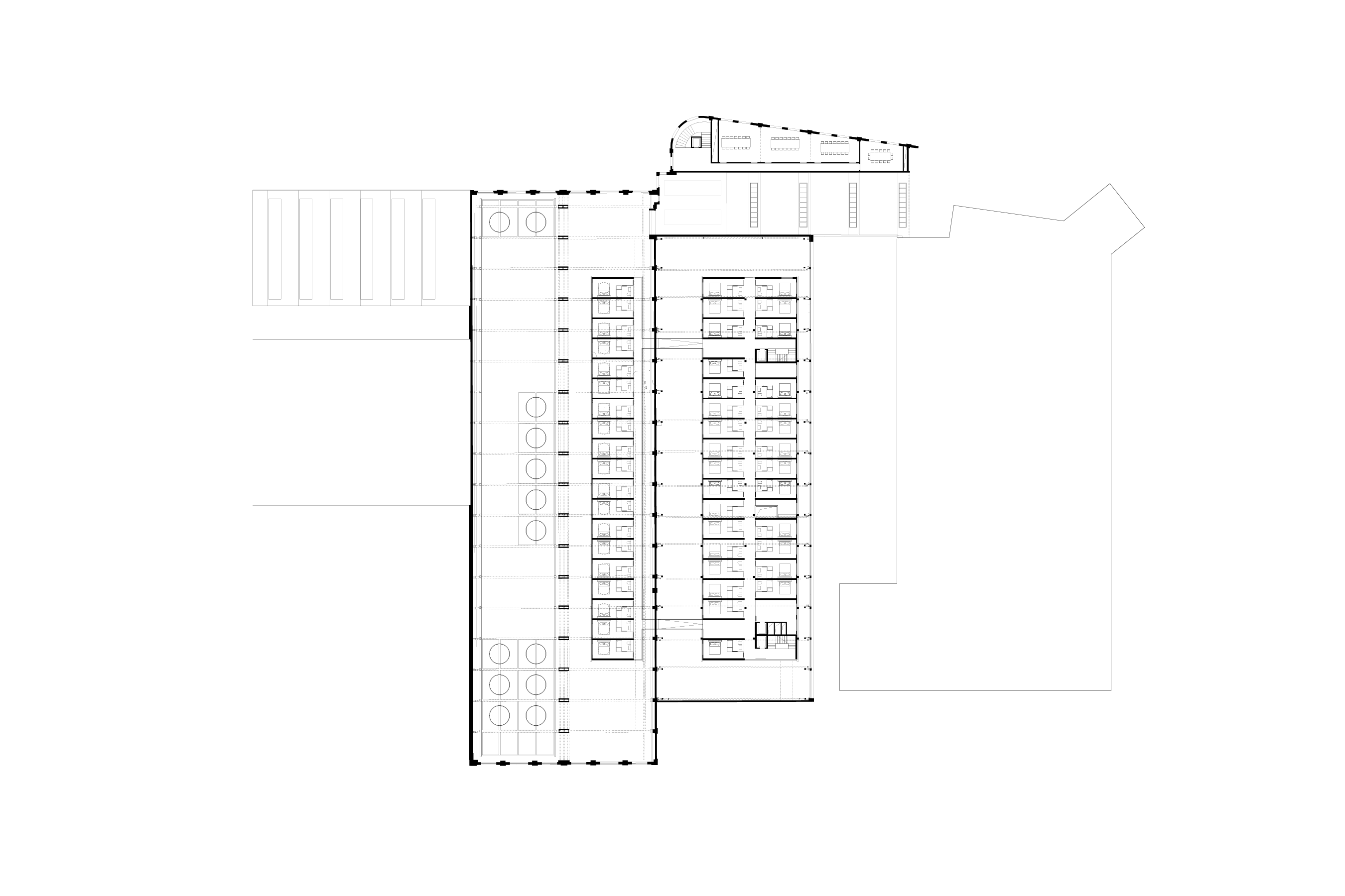
The Rapide Hall houses the hotel, the head building features an event space, and the Draisine Hall is conceived as a two-floor co-working space. All of these uses and areas can be accessed via the centrally located main entrance.
The restaurant, oriented towards Dialogplatz, establishes a link to the public space outside through its inviting outdoor seating. The towering interiors, characterized by a distinct concrete structure with integrated glass skylights, offer a site-specific, urban dining experience.
The reinforced concrete columns and girder structures of the installation inside Habersack Hall and those of Rapide Hall's hotel come together into a uniform composition with a visible grid mirroring the rhythmic patterns of the original halls. Circular apertures pay homage to the 1970s Capsule Tower by Kisho Kurokawa, consisting of 140 standardized, prefabricated residential modules. Additionally, they evoke references to the site's industrial lineage and the world of locomotives.
moreless
In der Lokstadt, dem ehemaligen Industrieareal der Schweizerische Lokomotiv- und Maschinenfabrik SLM, entsteht im Stadtzentrum von Winterthur ein neuer, vielseitiger und nachhaltiger Stadtteil. In diesem urbanen Kontext wird von verschiedenen Wohnformen über Büros, Co-Working und Hotel bis hin zu Gastronomie und Retail viel Neues entwickelt. Dabei wird die Identität des historischen Orts unter anderem durch wertvolle denkmalgeschützte Hallen und grosszügige Freiräume bewahrt.
Die Halle Habersack bildet die zentrale Erschliessungsachse mit der Markthalle als öffentlichem Bereich. Daran angebunden finden sich die Rezeption des Co-Workings mit dazugehörendem Eventraum, die Gewerbeeinheiten sowie das Restaurant. In der Halle Rapide befindet sich das Hotel, im Kopfbau der Eventbereich und in der Halle Draisine zweigeschossig das Co-Working. Die verschiedenen Nutzungen sind via Haupteingang gut und zentral erschlossen.
Das Restaurant im Südwesten orientiert sich zum Dialogplatz hin und schafft mit attraktiven Aussensitzplätzen einen Bezug zum öffentlichen Aussenraum des Gesamtareals. Im überhohen Raum, der geprägt ist von einer klaren Betonstruktur mit integrierten Glasoberlichtern, ist ein ortsspezifisch urbanes Gastronomie-Erlebnis möglich.
Die in Stahlbeton ausgebildeten Stützen-Träger-Strukturen der Einbauten in der Halle Habersack sowie des Hoteleinbaus der Halle Rapide werden durch ein sichtbares Stützenraster, das sich in der Rhythmik von den bestehenden Hallenstrukturen ableitet, zu einer einheitlichen Komposition. Die runden Löcher erinnern an den Capsule Tower von Kisho Kurokawa von 1970, der aus 140 standardisierten und vorgefertigten Wohnmodulen besteht. Gleichzeit schaffen sie einen Bezug zur Industrie und zur Lokomotive.
moreless
facts
commission: Competition
program: Conversion, Hospitality, Mixed Use, Office, Retail
team: Annette Spillmann, Harald Echsle, Rico Furter, Ulrike Feucht, Chen Kaihong, Katrin Zumbrunnen