Founded as an innovative start-up in 2010, On has since grown into a worldwide leader among running shoe brands.
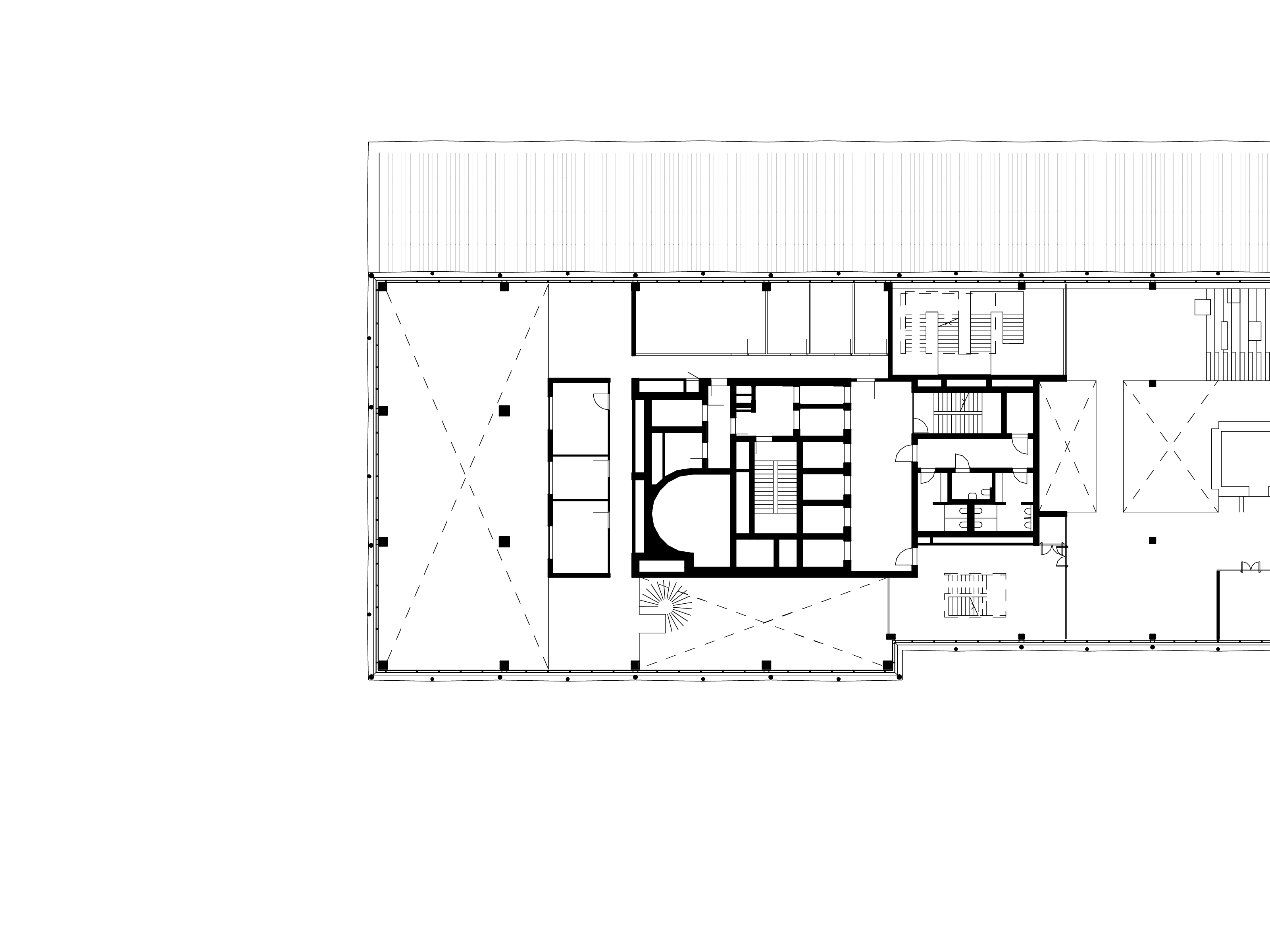
Situated in the dynamic Zurich West district, the firm’s new corporate headquarters by local architects EM2N provide space for approximately 1000 employees in a 17-storey high-rise building. Spillmann Echsle’s interior fit-out, a joined collaboration with Specific Generic of Stockholm, reflects the architectural logic of the building as a whole and forms a spatial link between the two different worlds of product development housed within: the “lab”, which occupies the structure’s four-storey base, and the “neighbourhoods” above, where marketing, logistics, and sales activities take place.
A reception area with an integrated café and shop is located on the ground floor. One floor up, a generous two-storey space for meeting and co-working is open to external visitors, thus establishing a connection to the surrounding city.
While stairs in the building’s base are straight, they curve to form ever-narrower spiral staircases in the tower above. These staircases provide access between the three-storey “neighbourhoods” stacked one atop the other, each of which contains a kitchenette, a break area, various informal meeting spaces, office workspaces, and conference rooms. The conference rooms are concentrated in the building’s open-plan centre, where they are organised around a stair core and wrapped in perforated wood sheathing. Large pivot doors create generous openings in the sheathing, blurring the threshold between the work and meeting spaces on either side.
moreless
Als innovatives Start-up im Jahr 2010 gegründet, hat sich On seither zu einer weltweit führenden Laufschuhmarke entwickelt.
Im dynamischen Stadtteil Zürich West gelegen, bietet der neue Firmensitz des lokalen Architekturbüros EM2N in einem 17-stöckigen Hochhaus Platz für rund 1000 Mitarbeiter. Der Innenausbau von Spillmann Echsle in Zusammenarbeit mit Specific Generic aus Stockholm spiegelt die architektonische Logik des gesamten Gebäudes wider und bildet eine räumliche Verbindung zwischen den beiden unterschiedlichen Welten der Produktentwicklung: dem "Labor", das den vierstöckigen Sockel des Gebäudes einnimmt, und den darüber liegenden "Quartieren", in denen Marketing-, Logistik- und Verkaufsaktivitäten stattfinden.
Im Erdgeschoss befindet sich ein Empfangsbereich mit integriertem Café und Shop. Eine Etage höher steht ein großzügiger zweigeschossiger Raum für Besprechungen und Co-Working für externe Besucher zur Verfügung und stellt so eine Verbindung zur umliegenden Stadt her.
Während die Treppen im Sockel des Gebäudes gerade verlaufen, biegen sie sich im darüber liegenden Turm zu immer enger werdenden Wendeltreppen. Diese Treppen ermöglichen den Zugang zu den dreigeschossigen, übereinander gestapelten "Quartieren", die jeweils eine Teeküche, einen Pausenbereich, verschiedene informelle Besprechungsräume, Büroarbeitsplätze und Konferenzräume enthalten. Die Konferenzräume sind in der offenen Mitte des Gebäudes konzentriert, wo sie um einen Treppenkern herum angeordnet und mit einer perforierten Holzverkleidung ummantelt sind. Große Schwenktüren schaffen großzügige
moreless
facts
commission: Direct
program: Interiors, Office
size: 15000 m²
team: Annette Spillmann, Harald Echsle, Christoph Heitzmann, Philippe Steiner, András Kiss, Siyi Dai, Linda Hatava, Simone Iseli, Chen Kaihong, Gosia Kocima, Alexandra Meuche, Raphael Suter
consultants: Spiegel + Partner AG; Mosimann & Partner AG; Synaxis AG; HEFTI. HESS. MARTIGOGNI; Polke, Ziege, von Moos AG; Caduff & Stocker Lichtplanung GmbH
collaboration: specific generic + Maja Bernvill
awards: best architects 24; marketing+architecture award 23;